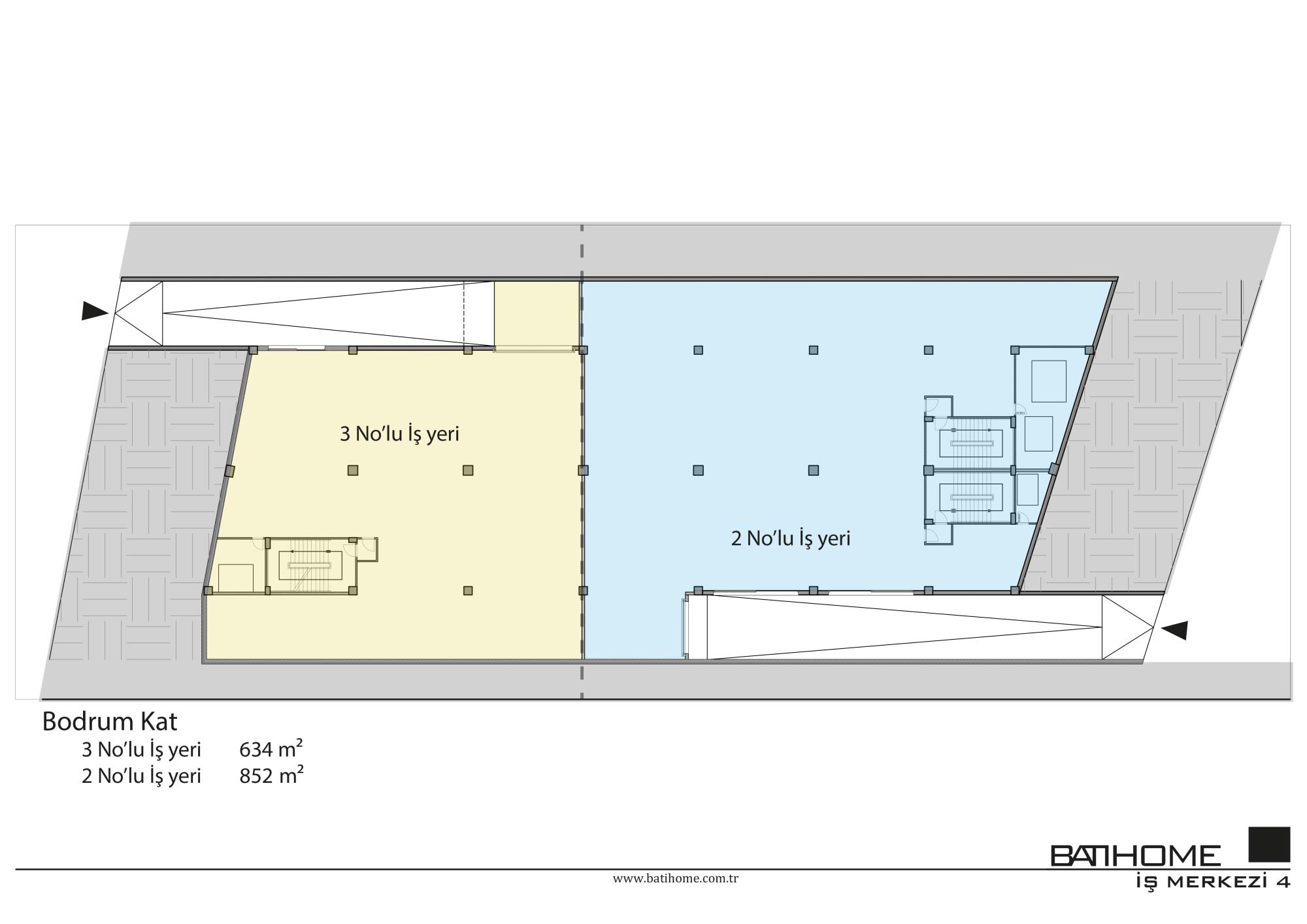
Batıhome İş Merkezi 4