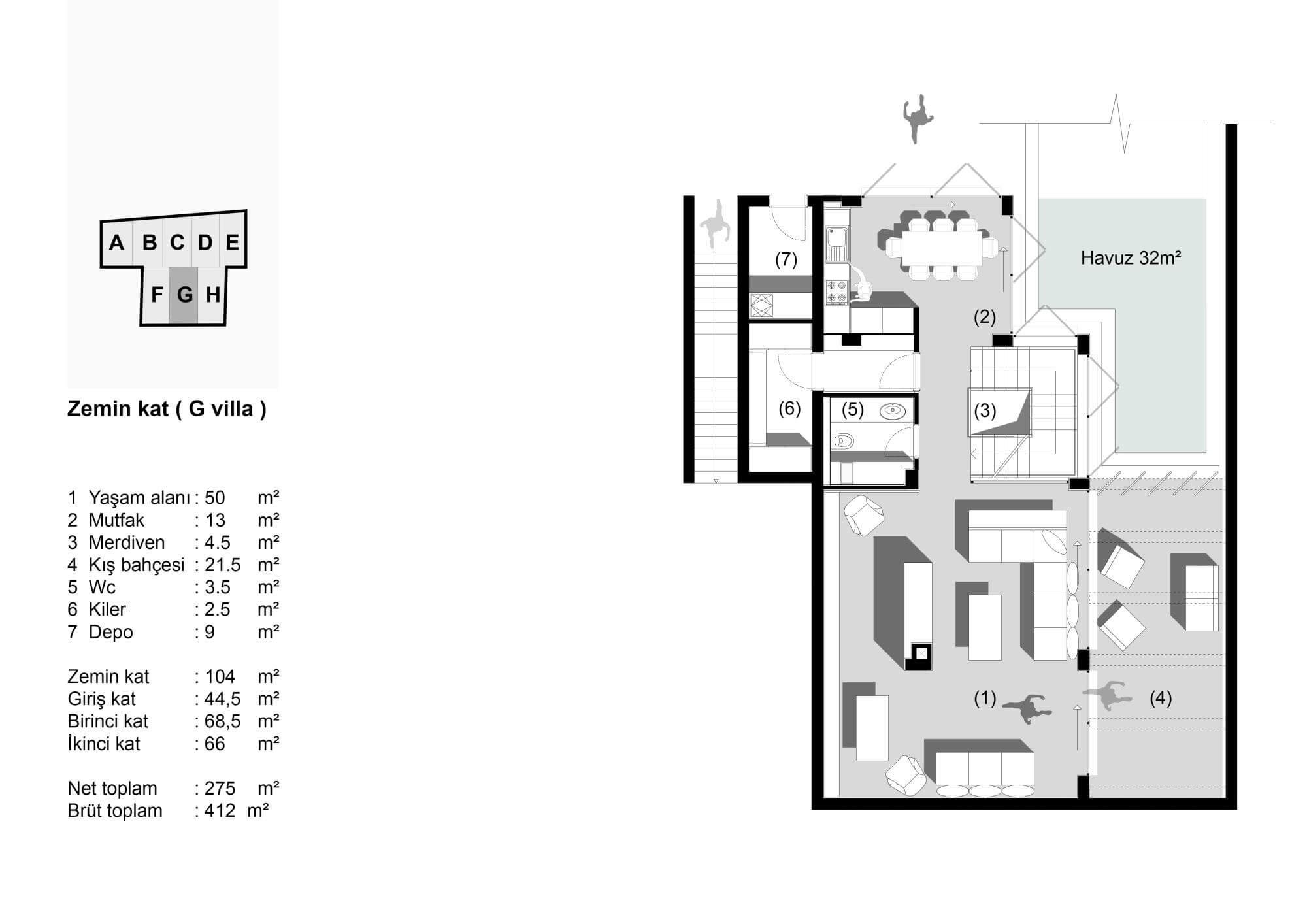
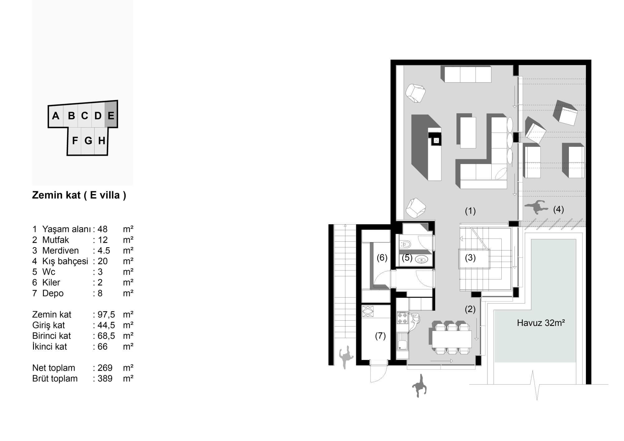
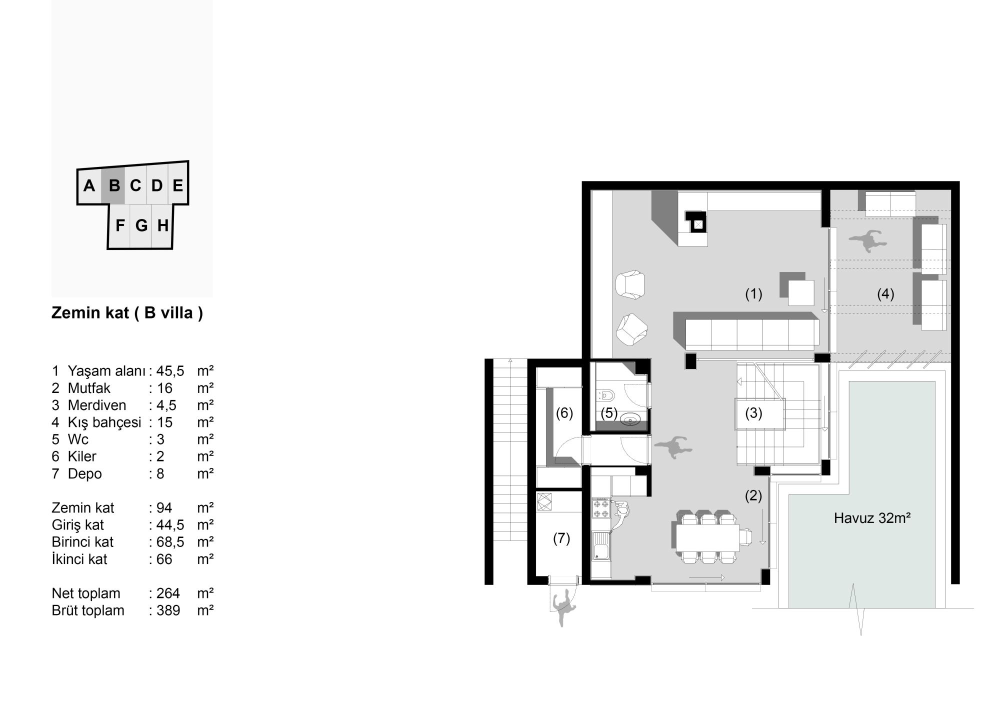
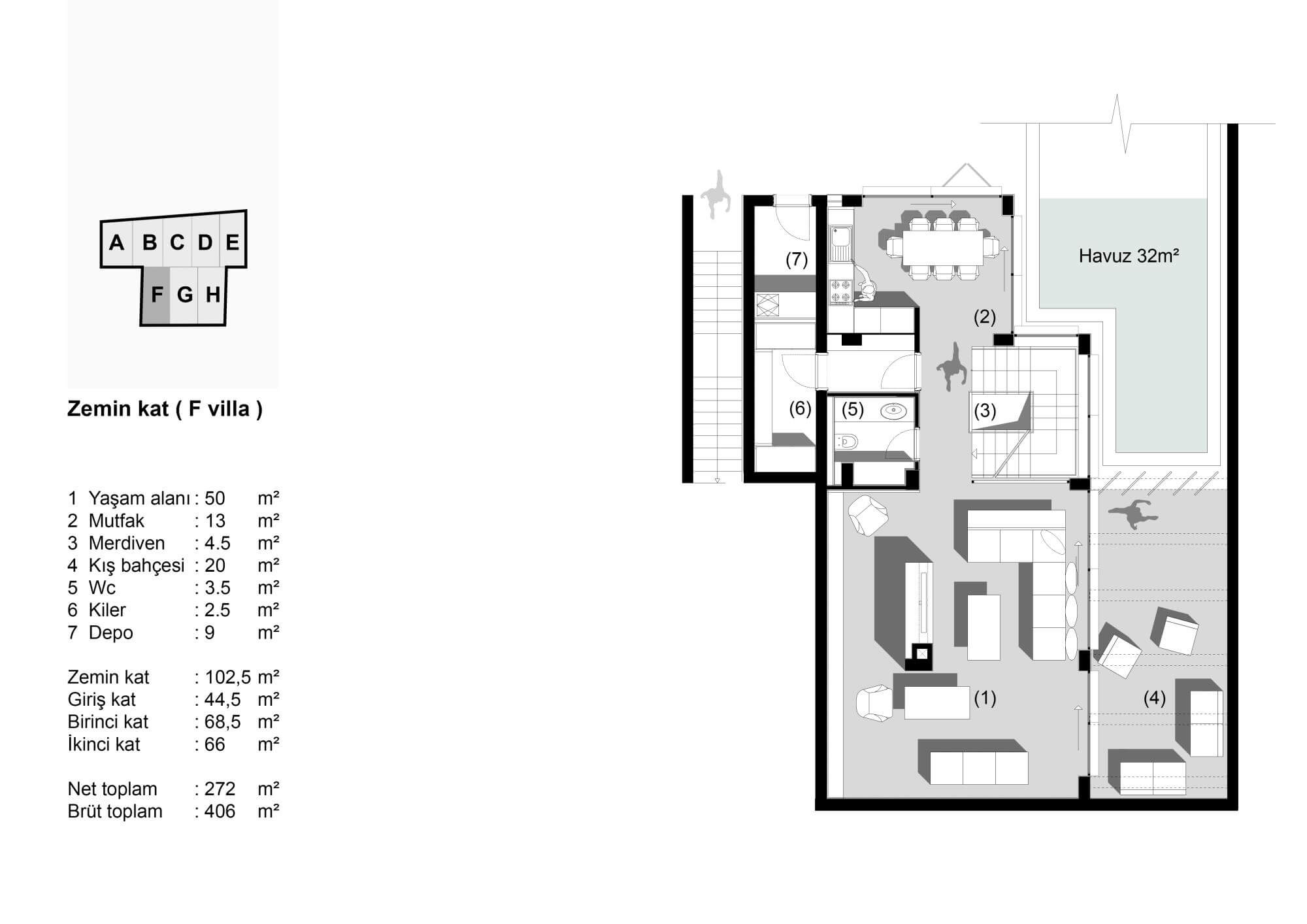
Batıhome 8